Edificio ORION. Departamento 3 ambientes en 6° piso (Semi piso)

direccion San Juan 775, Mar De Ajó

volver Volver al listado
left
right
left
right

Venta

USD 99.000

Codigo Código de propiedad: 503
  • Tipo de propiedad Departamentos
  • ambientes 3 Ambientes
  • toilet 2 baños
  • cama 2 Dormitorios
  • cama 1 Dormitorio en suite
  • Disposicion Disposicion Frente
  • Apto crédito Con apto crédito
  • Permuta Acepta permuta
  • Anticipo y cuotas Anticipo y cuotas
  • Superficie cubierta Sup. cubierta 72m2
  • Superficie total Sup. total 94m2
  • Pisos 6 pisos
  • Zonificacion Zonificación MAR DE AJO NORTE
  • Antiguedad Antigüedad En construcción

Acerca de la propiedad

----------------------------------------------------------------------
EXCLUSIVO EMPRENDIMIENTO: Edificio ORIÓN
----------------------------------------------------------------------

Una propuesta integral que combina diseño, modernidad, accesibilidad, durabilidad y atención al confort de los residentes, convirtiéndolo en un espacio residencial atractivo, eficiente y funcional.

DEPARTAMENTO 3 AMBIENTES EN EL 6° PISO DEL EDIFICIO

UBICACIÓN: Calle San Juan n° 772 e/ calles Moreno y Córdoba. Muy buena ubicación, a una cuadra del mar (Bajada directa al muelle de Mar de Ajó) a siete cuadras de la avenida principal de Mar de Ajó Av. Del Libertador y a dos cuadras del barrio "San Rafael"

COMPOSICIÓN DEL EDIFICIO Y AMENITIES:

El edificio contará con una totalidad de 6 pisos distribuidos de la siguiente manera:
  • En PLANTA BAJA: Hall de acceso, cocheras y bauleras.
  • En ENTRE PISO: Un departamento semi - piso de 4 ambientes.
  • En los PISOS 1 A 5: Habra 3 departamentos por piso, siendo uno de ellos de 2 ambientes y dos de ellos de 3 ambientes.
  • En SEXTO PISO: Habrá dos departamentos, ambos de 3 ambientes.

Además, ofrecerá variedad de comodidades, entre ellas:
  • Hall de usos múltiples 
  • Posibilidad de adquirir cocheras y bauleras en el mismo edificio.
  • Terraza con vista panorámica al paisaje costero de la ciudad de Mar de Ajó.
  • Gimnasio.

UNIDADES

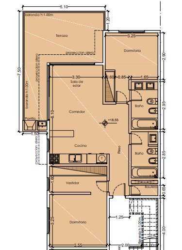
Departamentos 3 AMBIENTES (En piso 6)
SUPERFICIE: Total: 101.23m², Cubierta: 77.19m², Semi-cubierta: 24.04m²
Orientacion ESTE y OESTE. Vista al mar desde todos los ambientes y excelente asoleamiento y ventilación debido a su doble orientación.
Compuesto por: Amplio espacio de living - comedor con cocina integrada, dos dormitorios (Uno de ellos en suite), dos baños completos, baulera propia y balcón terraza con parrilla.

TODOS LOS DEPARTAMENTOS TIENEN LA OPCIÓN DE ADQUIRIRSE CON COCHERA Y/O BAULERA.

Caracteristicas constructivas:
Mampostería de ladrillo hueco.
Contrapiso y carpeta de sistema tradicional H° pobre.
Revoque tradicional a la cal con capa hidrófuga exterior.
Pisos y revestimientos de cerámica y porcelanato de primera calidad.
Carpintería de aluminio en línea Módena blanco/negro con DVH.
Instalaciones sanitarias con cañería de agua fria/caliente en termofusión.
Instalación de desagüe cloacal Awaduct con ventilaciones y cámaras segun planos.
Instalación eléctrica con circuitos separados, tableros seccionales y cables normalizados con sello de cumplimiento en normas IRAM.
Carpintería de madera para puertas placas interiores en linea estándar.
Se entrega con: Mesada, bajo mesada y alacenas de melamina, termotanque eléctrico, cocina eléctrica, sanitarios y grifería de primera marca.
Pintura general con masilla, fijador, y aplicación de látex anti hongos.
Acabado exterior con aplicación de revestimiento plástico según fachada (Tarquini).

-----------------------------------------------
VALORES Y FORMAS DE PAGO:
-----------------------------------------------


SEXTO PISO:
A) 3 ambientes. Contrafrente (Este) ----- CONTADO U$D 99.000       FINANCIADO U$D 118.000 -- CONSULTE POR ANTICIPO Y CUOTAS.
B) 3 ambientes. Frente (Oeste) ----- CONTADO U$D 100.000       FINANCIADO U$D 119.500 -- CONSULTE POR ANTICIPO Y CUOTAS

***Cuotas fijas en dólares***
*** Financiación directa y segura***

¡No te pierdas la oportunidad de invertir en Torre ORION, un proyecto único para disfrutar una vida costera a pleno lujo y confort!

Estamos a su disposición ante cualquier consulta

DAQUINO inmobiliaria




AVISO LEGAL: 1) Las descripciones arquitectónicas y funcionales, fotos, renders, memorias descriptivas, medidas del inmueble, precios, valores de expensas, impuestos y servicios y fechas de entrega de los emprendimientos son aproximados, meramente orientativos y no vinculantes. 2) Los datos fueron proporcionados por el propietario o por el desarrollador y pueden no estar actualizados a la hora de la visualización de este aviso por lo que pueden arrojar inexactitudes y discordancias respecto de los datos exactos, los cuales surgen de las facturas, títulos y planos legales del inmueble. 3) Recomendamos y sugerimos al usuario y/o al interesado realizar las verificaciones respectivas previamente a la realización de cualquier operación, requiriendo -a tal fin- por sí o a través de profesionales las copias necesarias de la documentación que estimen necesario conocer con exactitud.

Comodidades

  • Cochera 1 cochera
  • Parrilla Con parrilla
  • Mascotas Acepta mascotas
  • Con vista al mar Con vista al mar
  • balcon Con balcon
  • Solarium Con solarium
  • Ascensor Con ascensor
  • Termotanque Con termotanque
  • Cerca del mar Cerca del mar
Ver más

Ubicación

Con más de 45 años de trayectoria dentro del mercado inmobiliario. ¡Estamos para ayudarte a adquirir el hogar de tus sueños en La Costa!

Servicio brindado por

buscadorprop

Todos los derechos registrados:

grupotodo
whatsapp Whatsapp email Contactar telefono Llamar
Chatea con nosotros whatsapp